木×RC打ちっぱなしのリビングスペース

木×RC打ちっぱなしのリビングスペース

2023年12⽉築、外観デザインも見事なマンション。

 2023年12⽉築、外観デザインも見事なマンション。

西の日差しをリビングに届ける角窓。

西の日差しをリビングに届ける角窓。

上北沢の住宅街が見えます。

上北沢の住宅街が見えます。

キッチンモノクロカラー。収納は下部分にオープンなものが。

キッチンモノクロカラー。収納は下部分にオープンなものが。

カウンターキッチンで、ここで食事も。

カウンターキッチンで、ここで食事も。

シンプルな浴室。乾燥機付きで雨の日の洗濯物にも。

シンプルな浴室。乾燥機付きで雨の日の洗濯物にも。

木の素材で出来た造作の洗面台。

木の素材で出来た造作の洗面台。

水まわりにある木材。温かい存在です。

水まわりにある木材。温かい存在です。

温水便座のトイレ。木の収納棚があります。

温水便座のトイレ。木の収納棚があります。

2.8帖のお部屋。南からの日差しが入ります。

2.8帖のお部屋。南からの日差しが入ります。

エアコンもあります。引っ掛けて使える収納も。

エアコンもあります。引っ掛けて使える収納も。

姿見とオープンなシューズボックスのある玄関。

姿見とオープンなシューズボックスのある玄関。

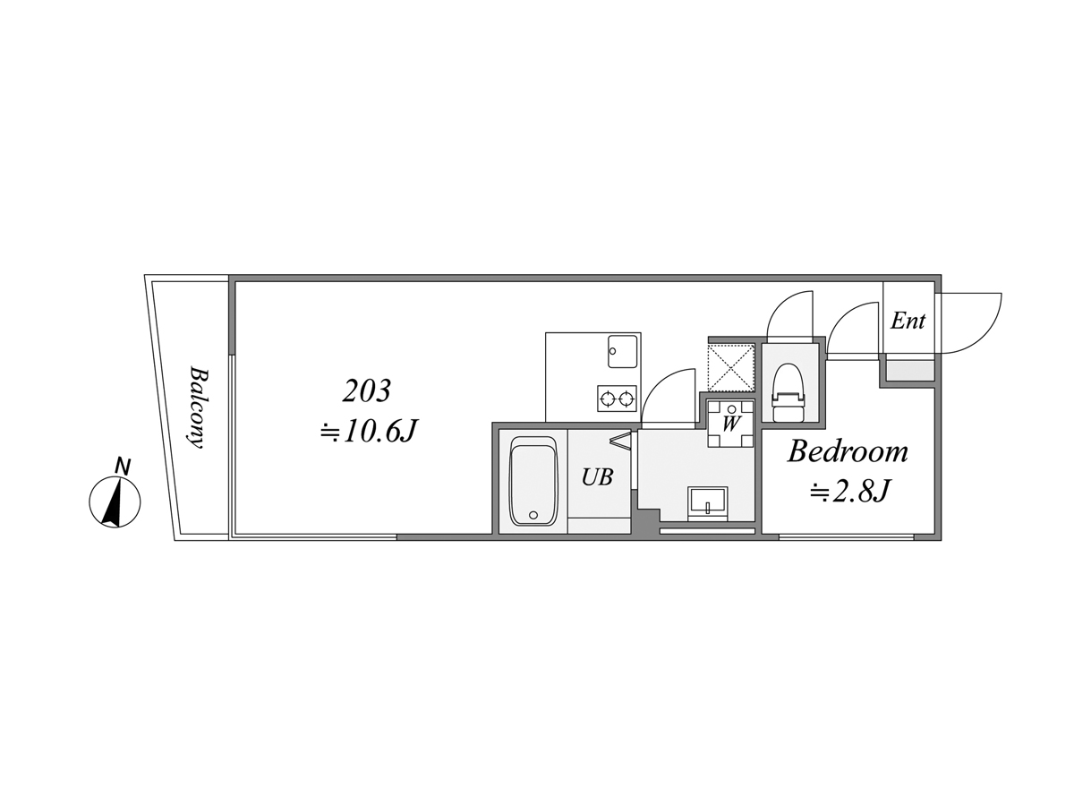
大きな窓、伸びやかな暮らし 203

STAFF RECOMMEND

担当:はせがわ

賃貸では珍しいほど大きく開いた窓。
コンパクトながらも、この窓が開放感を作ってくれている、ひとり暮らし1LDKの一室です。

間取りは、玄関から左手に2.8帖が一部屋、キッチンを抜けた先にリビングがあるシンプルな1LDKのつくりをしています。2.8帖は寝室ならベッドがぴったりギュウギュウ。エアコンも窓もあるのでせっかくなら、家での仕事や趣味で集中する時間をつくりたい人の一部屋とするのが、2.8帖の使い方としてはおすすめ。荷物やお洋服が多いなら、まるっと収納にしてしまうのも手かも。

メインのLDKはコンパクトですが、角窓がたっぷりの開放感を運んでくれるので、思ったよりものびのびとした印象。2.8帖を寝室にするなら窓辺に小さなソファを置いてまどろみの場所に。ベッドをLDKに置くことにしたら、寝具も合わせて好みで揃えたワンルーム的に。天井はRC打ちっぱなし、床は木のフローリングと素材感のある内装なので、合わせるならビンテージものやファブリックなアイテムも良さそう。

キッチンはキュッと絞まったダークカラーなつくり。こちらもかなりコンパクトで、自炊を捗りたいならカウンター部分を調味料置きや作業に使うとぐっと勝手が良くなると思います。

上北沢はよく眠れる街という印象。というのも、駅前は限られたお店だけで、あとは家々がある住宅地です。スーパーや小さなパン屋、シチリア料理(とても本格なお料理らしいので一度はぜひ)など、住まう人々と穏やかさもちょっとずつ分け合いながら過ごす暮らしがあります。静かで、あたたかい街です。

穏やかな街に隠れた見どころ満載な一室です。敷金・礼金の無しなので、初期費用を抑えて住み替えられるのも嬉しいポイント。

Fudousan Plugin Ver.6.9.0