築古のバトンを受けとって 403
東北沢駅から徒歩5分。穏やかな住宅街に建つ築古マンションの一部屋を、フルリノベーションしたお部屋です。
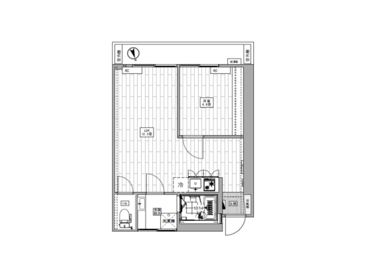
水色のベランダとみどり屋根のレトロなマンション。この外観だけで、もうすでに心くすぐられる方もいるのではないでしょうか。このマンションが建ったのは、1969年。50年以上前につくられた物件で、古さはあるもののRC造のしっかりとしたつくりで、経年からなる味の出た様子は、今の私たちだからこそ良い!と思える魅力になっています。エレベーターは無く、使いこまれた階段とこれまたポップな水色の各部屋の玄関扉を見ながら4階へ。間取りも、今の暮らしに使いやすい1LDKです。
床は全面木のフローリング。あちこちにある棚や収納にも木が使われ、一歩部屋に入るだけで温かい気持ちになります。と思いきや、むき出しのダクトやアイアンの素材。バルコニーや窓の一部は古いものがそのまま残っていて、これがいい引き立て役。
天井はそこまで高くないものの、玄関からフラットにLDKが続いてることで、開放的な印象。南東からパッと明るい日差しが入るのも、良い寛ぎ空間の要因となっています。キッチンはタイルと電球でつくられた愛らしい仕様で、パンやコーヒーを仕込みたくなる姿をしていますが、調理スペースは思ったよりも狭め。なので、カウンターや食器棚をつくって使いやすいキッチンに整えていくのがベストかと思います。
寝室となる4.9帖は、しっかり仕切れる扉付き。ちょうどいい空調で眠れたり、誰かが遊びにきたときでもプライベートは隠しておけます。棚板とハンガーパイプ組み合わせのオープンなクローゼットは、壁一面にずらりと。使うと飾るが一体となった収納です。
4階は雲の流れがよく見える、のびのびとした景色。バルコニーはリフレッシュできるような太陽の日差し、窓辺は温かくまどろみをうむような心地よさ。どれだけ築年がたっても、リノベーションされても、この景色と日差しは変わらずあったんだろうなと思います。この変わらなさと、生まれ変わった部屋が合わさって、今暮らしやすい一部屋となりました。
最寄りは東北沢。下北沢と代々木上原の挟まれた場所ですが、落ち着きのあるのどかな街です。マンションのお隣にはピザと、クラフトビールとパンのお店。きっと誰かを招いても、街やご近所ごと楽しんでもらえるはずです。
*写真はクリーニング前のものとなります。



