【貸店舗事務所】「松陰神社前」駅の目の前、まちの“顔”となるお店に 1-2

松陰神社前駅を降りたらすぐ目の前。
ブーランジェリー スドウさんやかとり家さんが並ぶ、商店街の中でもひときわ立ち寄りやすい一角に、1F路面店の募集が始まります。
もともとは戸建住宅だった建物。今回一棟リノベーションによって1階部分を街に開き、テナント区画として生まれ変わりました。
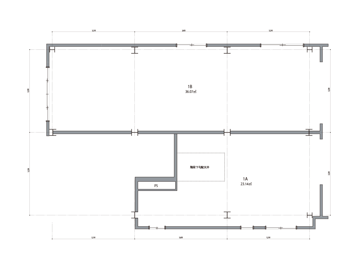
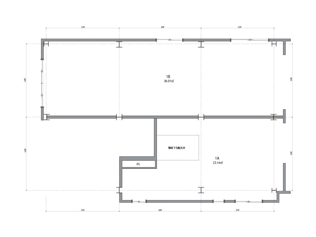
募集区画は、次の2区画。いずれも現況はスケルトンの状態です。

・1-1区画:36.07㎡(10.91坪)/賃料 330,000円(税込)
・1-2区画:23.14㎡(6.99坪)/賃料 209,000円(税込)
※2区画一括貸しもご相談可能です。
オーナーさんは、代々この土地を大切に守ってきた方。
街に必要とされ、地域の暮らしに寄り添うようなお店を歓迎しています。
だからこそ“日常使いできるお店”へのニーズは高め。
たとえば、「今日は外食しないけど、帰りにお惣菜を少し」
「週末のおみやげに、和菓子を一つ」など。
そんなささやかな生活のワンシーンに、この場所は自然と溶け込むでしょう。
“地域に溶け込みながら、街に新しい風を吹き込む”。
そんなお店を始めるには絶好のロケーションです。
駅を降りてすぐ出会える、真っ白な余白をどう彩るか。
次の担い手となる方を、街もオーナーも楽しみに待っています。
*オーナー様へのインタビュー記事を公開いたしました。
ぜひご一読ください。
▼縁がつないだ家と店のかたち ──街にひらかれた家がつくる、新しい駅前の表情|オーナーインタビュー
https://note.com/setagayakurasson/n/n2b856961d19b
*現在工事中のため、内見は10月中旬からとなります。決まり次第お知らせします。
*定期借家契約 3年(再契約相談可)
*重飲食不可
*退去時スケルトン返し
*入居審査時 オーナー面談あり


